Portfolio

Elementary school Karađorđe in Rača

Elementary school Karađorđe in Rača

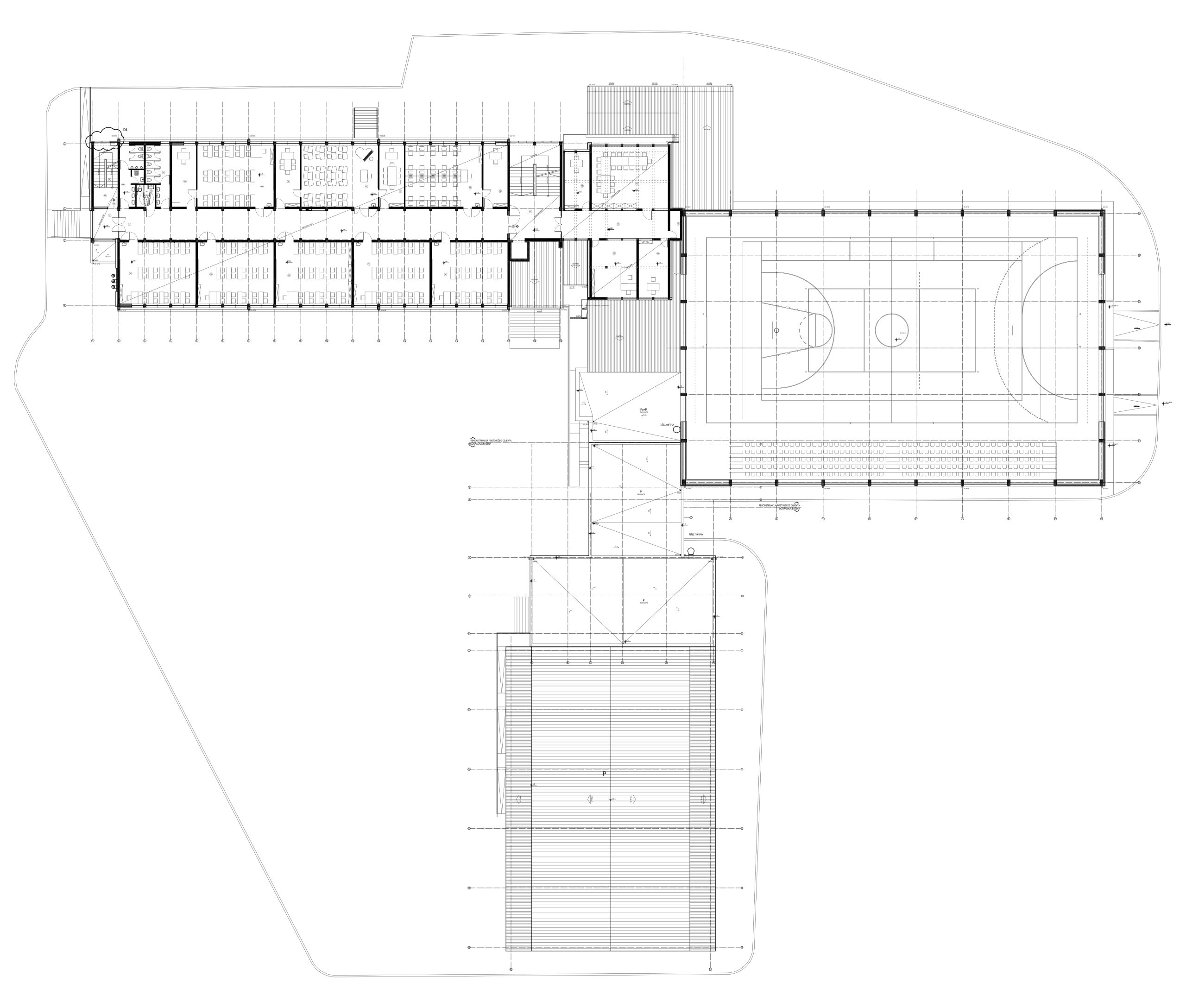
The project of reconstruction and extension of the primary school “Karađorđe” in Rača represents the transformation of the existing building, which has since been expanded by the construction of an annex with a sports hall. With this intervention, the space was improved by adding a swimming pool and adapted to meet the needs of modern use.
Through architectural design, the building is transformed in such a way as to retain the existing external structure, but to point out its basic function, which is basic education, through the playfulness of individual details. The same principle is applied to the exterior decoration in a two-dimensional form on part of the outdoor sports fields, where free-form artistic expression is applied.

Date:
Category: